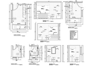
Banyo çizimi;
Tefrişli farklı boyutlarda banyo çizimi plan ve görünüşler. Ayrıca banyo çözümü içeren konut projelerini şuradan inceleyebilirsiniz.
| İndirme Bağlantısı | : |
| Sponsorlu Bağlantı | |
| Dosya Türü | : .dwg |

Tefrişli farklı boyutlarda banyo çizimi plan ve görünüşler. Ayrıca banyo çözümü içeren konut projelerini şuradan inceleyebilirsiniz.
| İndirme Bağlantısı | : |
| Sponsorlu Bağlantı | |
| Dosya Türü | : .dwg |
İyi günler indirme bağlantısını kullanamıyorum, yardımcı olabilir misiniz ?
Kendime dublex ahşap karkas çizdim.
Netcad programı ile, maliyeti de oldukça düşük. Islak zemini nasıl olacağını düşünüyorum. Temeli hazırlıyorum. Nisanda başlayacağım. Yardımcı olabilir misiniz.