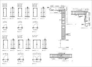
Ahsap Kapi Detayı - Plan Kesit ve Görünüşleri DWG dosyası, detaylı çizimleriyle teknik projelerinizde kullanım için idealdir. Yapısal elemanları ve ölçüleri net bir şekilde sunar.
- Dosya Türü dwg
- İndirme Sayısı 1912
- Dosya Boyutu 0.00 KB
- İndirme Bağlantısı Ahsap Kapi Detayı - Plan Kesit ve Görünüşleri







