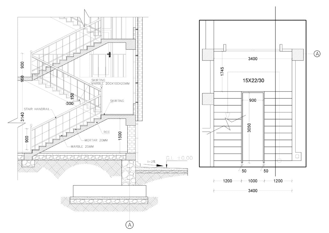
Sistem Kesiti Çizimi: DWG Betonarme Sistem Detayları DWG dosyası, detaylı çizimleriyle teknik projelerinizde kullanım için idealdir. Yapısal elemanları ve ölçüleri net bir şekilde sunar.
- Dosya Türü dwg
- İndirme Sayısı 2008
- Dosya Boyutu 0.00 KB
- İndirme Bağlantısı Sistem Kesiti Çizimi: DWG Betonarme Sistem Detayları



